Regler for Parkering
Som beboer i Nordens Søpark har du adgang til en øremærket P-bås, som er
tilknyttet lejligheden. P-båsen har et reservationsskilt med lejlighedens nummer. Din
lejligheds nummer er indgraveret på lejlighedens nøgler sammen med låsesystemets
nr. RMS11377. Hvis du er i tvivl om din lejligheds nummer, kan du som lejer kontakte
din udlejer. Vis du ejer din lejlighed, kan du kontakte ejerforeningens
ejendomsadministrator Newsec eller bestyrelsen.
Gæster, håndværkere, hjemmehjælpere og andre besøgende kan frit parkere i de
grønne og blå områder i henhold til P-ordningens regler – se oversigt nedenfor. Det
vil også fortsat være muligt frit at parkere i P-båse, som ikke er taget i anvendelse af
den øremærkede lejligheds beboer. Der vil i så fald ikke være et reservationsskilt ved
P-båsen.
Ejerforeningen har indgået aftale med Q-Park, som sikrer, at reglerne i
parkeringsordningen bliver efterlevet. Det betyder, at biler uden gyldig P-tilladelse
eller biler, som er parkeret i strid med reglerne, bliver pålagt en P-afgift (aktuelt kr.
795,00).


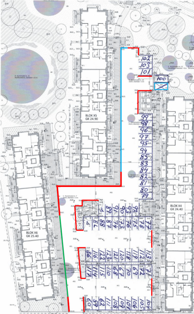
RØD = Parkering og standsning forbud
GRØN = Se billede af skiltet herunder.

BLÅ = Parkering forbud mandag til fredag mellem kl. 7:00 og 15:00 (standsning tilladt for af og pålæsning når føreren af bilen er i nærheden)
P-tilladelser og registrering af bil
Ved indflytning vil beboerne modtage tre e-mails fra Q-Park. Hver e-mail indeholder
en invitation til at oprette en brugeradgang i E-park, som er Q-Parks elektroniske
parkeringsløsning. Invitationen gælder Plads 3571, som er ejerforeningens to
parkeringsområder.
Hver beboer får tre invitationer, fordi man som standard er tildelt tre
parkeringstilladelser til den P-bås, som er øremærket din lejlighed. Dermed kan
beboere registrere op til tre biler som brugere af den øremærkede P-bås.
Hver beboer har mulighed for frit at tilknytte biler og ændre de tilknyttede biler til de
tre tilladelser og kan således frit disponere over den øremærkede P-bås. Bemærk, at
parkeringstilladelserne kun gælder den øremærkede P-bås. Hvis du som beboer
parkerer andre steder på ejerforeningens P-områder, skal man overholde de
generelle regler i parkeringsordningen.
Hvis beboerne får en håndværker på besøg, skal flytte eller lignende og derfor
ekstraordinært får brug for at parkere eller foretage af- og pålæsning i de røde
områder eller parkere i de blå områder mellem 7-15, kan man rekvirere en såkaldt
”håndværkertilladelse” hos sin udlejer – eller som ejer hos bestyrelsen.
Spørgsmål til ejerforeningens parkeringsordning kan rettes til Q-Park på hverdage
mellem kl. 9:00 og 15:00 på tlf. 70257212 og taste ”5”. Husk at oplyse pladsnr. 3571.
Du er som lejer også velkommen til at kontakte din udlejer, ligesom ejere kan
kontakte bestyrelsen via mail på bestyrelsen.efns@gmail.com.